/
Data Last Updated: 05/27/2026 20:07 PT
$349,000
51days on marketSend a tour request for 0 White Birch LN, Island City, OR, 97850.
Hand-routed to Nate Brantley, Principal Broker & Founder. You can expect a same-day reply during business hours.
Your contact details stay private to our team and are only used to coordinate this showing.
Sign in once with your email to send this showing request and keep spam out of the lead system.
We do not post your info publicly or share it outside your showing request.
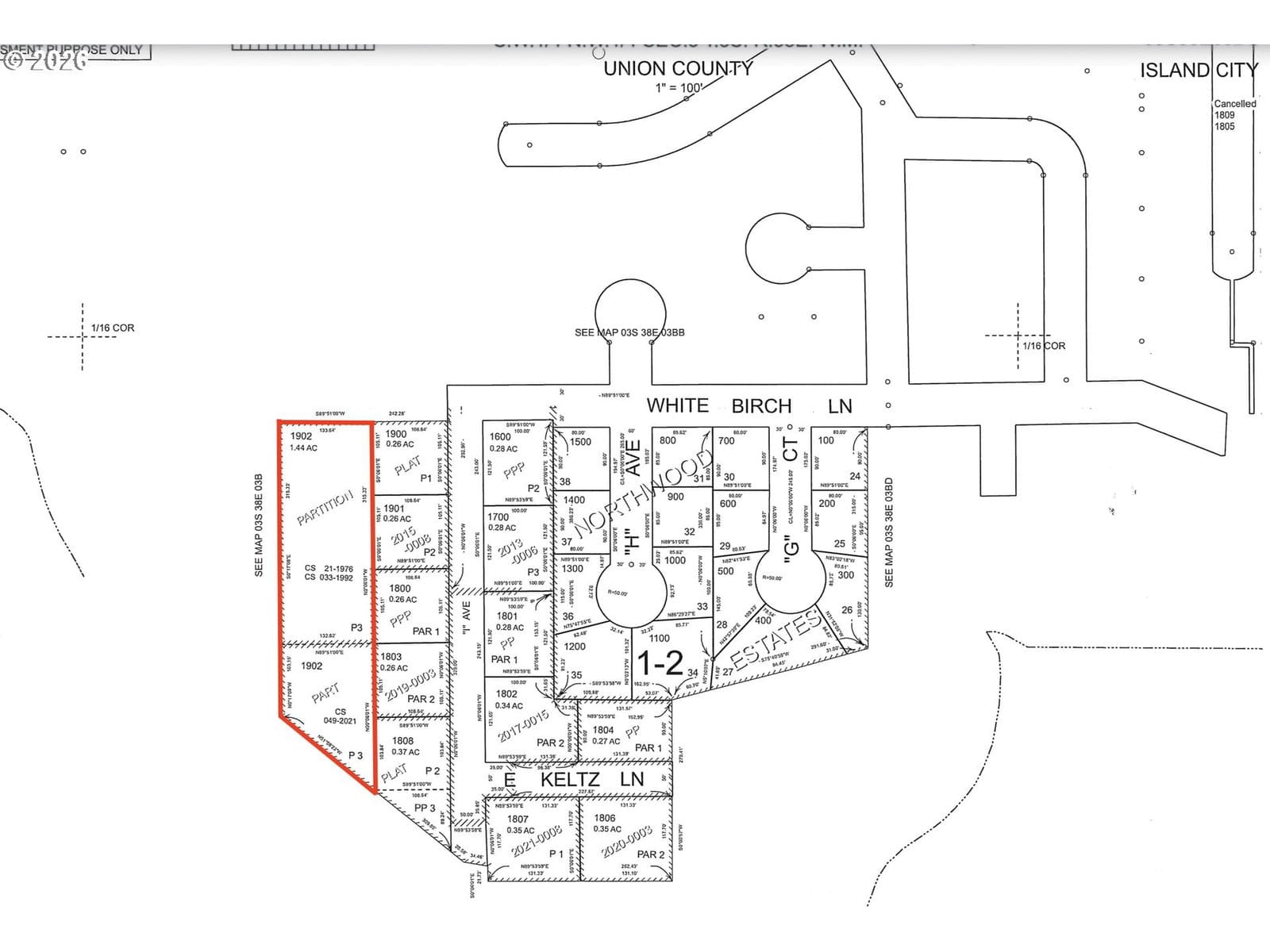
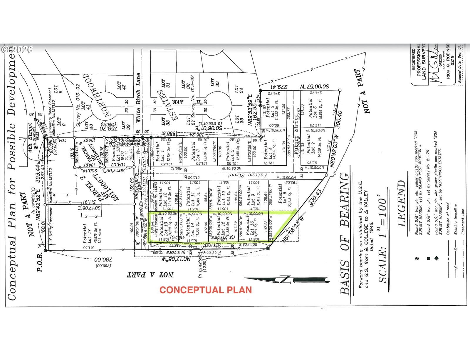
Opportunity to own 1.44 acres on the edge of a desirable Island City neighborhood! This property offers the potential to develop and partition into four buildable lots (each approximately a quarter acre or more). A nice blend of space and flexibility makes it a solid option for development, investment, or creating your own custom setup. Utilities are available and/or nearby, helping to support future plans. The location is hard to beat—just minutes from medical facilities, shopping, dining, and everyday amenities, with the La Grande Country Club just blocks away. You’ll also enjoy mountain views that enhance the overall appeal and setting. Whether you’re looking to build now or hold for the future, this is a versatile piece of ground in a growing, sought-after area. Buyer to perform their own due diligence regarding development potential, lot division, and intended use. Call today for more information!
Legal description
03S3803-BC-01902
Walk Score data provided by Walk Score®