/
$675,000
25days on market$675,000
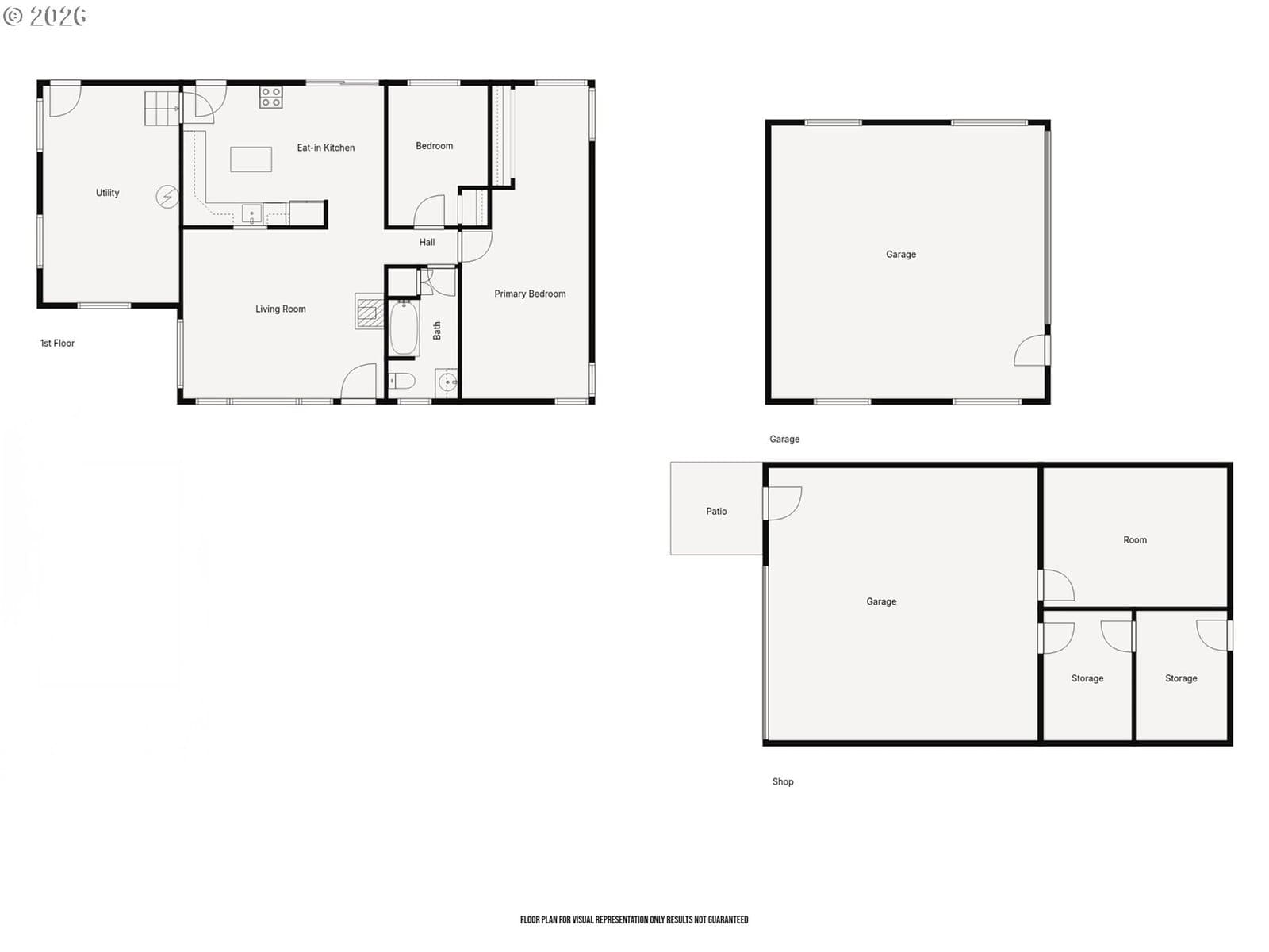
Escape to 160 Acres of Private Paradise: Dreaming of self-sufficiency without sacrificing modern conveniences? This exceptional property delivers both seclusion and accessibility with high-speed internet and major freeway access just minutes away. The cozy home is a 1,008 sq. ft. retreat featuring 2 bedrooms and 1 bath, recently refreshed with stainless steel appliances, fresh exterior paint, and a carport. Comfort is assured with a Fujitsu mini-split heating/cooling system (2025) and updated utilities including a water heater (2024) and washing machine (2025). Outbuildings & Infrastructure: Detached 2-car garage (freshly painted). 1,800 sq. ft. greenhouse with electrical, sliding doors, and light-deprivation screen for year-round growing. 960 sq. ft. shop with cement floors, 3 rooms, 2025 garage door, Daikin mini-splits, and water plumbed to the building. A 465 sq. ft. workshop with an additional 1,278 sq. ft. of extended outdoor coverage. 220 sq. ft. auxiliary shed.200 sq. ft. tin shed near the house (currently outdoor kitchen).A hand-operated well pump as a backup to the electric pump. Guest quarters in progress - sheet rocked, wired, and ready for your finishing touches. Land & Lifestyle: Enjoy evenings in the hot tub under star-filled skies unpolluted by light. The land offers marketable timber, pastures for livestock, 2 garden spaces, multiple fruit trees, and four seasonal ponds. The road has recently been graded and refreshed with a new layer of rock for improved access and durability. A new septic system is currently under installation, with completion expected in April. At 160 acres, this property qualifies for two annual Landowner Preference tags for hunting on your own land. Square footage based on tax records and seller estimates. Buyers encouraged to conduct independent due diligence.
Extras & features
Washer, Dryer, Free-Standing Gas Range, Free-Standing Refrigerator, Range Hood
Legal description
TRACT E1/2NE1/4 (IN FIRE) SEE R54692 FOR BAL TL, ACRES 5.00
Walk Score data provided by Walk Score®