/
Data Last Updated: 05/31/2026 00:42 PT
$500,000
80days on marketSold$512,500 · March 16, 2026
Send a tour request for 12976 SE 126TH AVE, Happy Valley, OR, 97086.
Hand-routed to Nate Brantley, Principal Broker & Founder. You can expect a same-day reply during business hours.
Your contact details stay private to our team and are only used to coordinate this showing.
Sign in once with your email to send this showing request and keep spam out of the lead system.
We do not post your info publicly or share it outside your showing request.
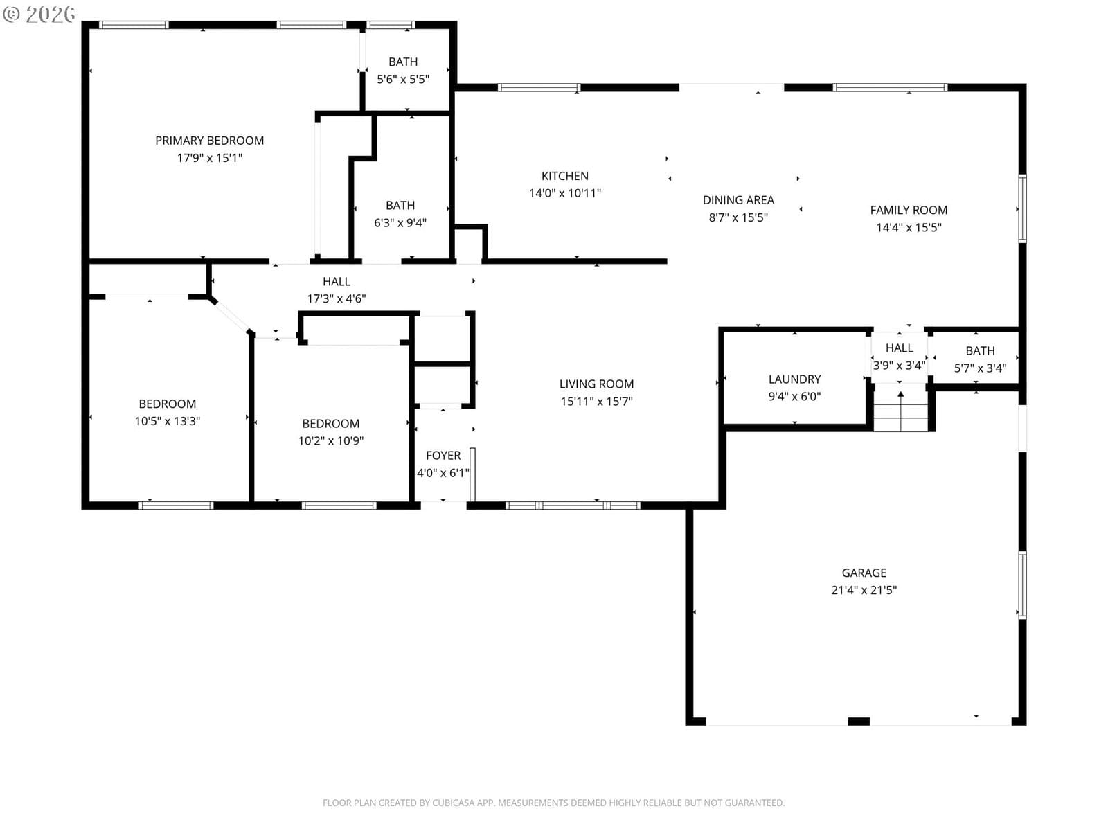
This home sits in Happy Valley. The home was built in 1980, set into the rhythm of the neighborhood.
Charming, move-in ready, single-level ranch in desirable Happy Valley, offered at a rare price point for the area. Conveniently located near parks, shopping, dining, and everyday amenities, this home offers the lifestyle many Portland-area buyers are looking for. Fresh interior and exterior paint give the home a bright, updated feel, while the comfortable layout makes single-level living easy and practical, perfect for first-time buyers or those ready to step away from stairs and enjoy the simplicity of one-floor living.The backyard provides plenty of space to imagine possibilities, along with a garden ready for planting. A beautiful deck overlooks peaceful green space, creating a perfect setting for morning coffee or relaxed evenings outdoors. Well-maintained landscaping and a spacious two-car garage with electric car charger add everyday functionality and charm. With its move-in ready condition, convenient location and rare price point for Happy Valley, this home is an outstanding opportunity to enjoy comfortable living.
Extras & features
Oven, Gas Water Heater, Washer, Dryer, Built-In Range, Free-Standing Refrigerator, Microwave
Legal description
2461 IMPERIAL EST LT 8
Building amenities
Walk Score® data provided by Walk Score