/
$1,590,000
325days on market$1,590,000
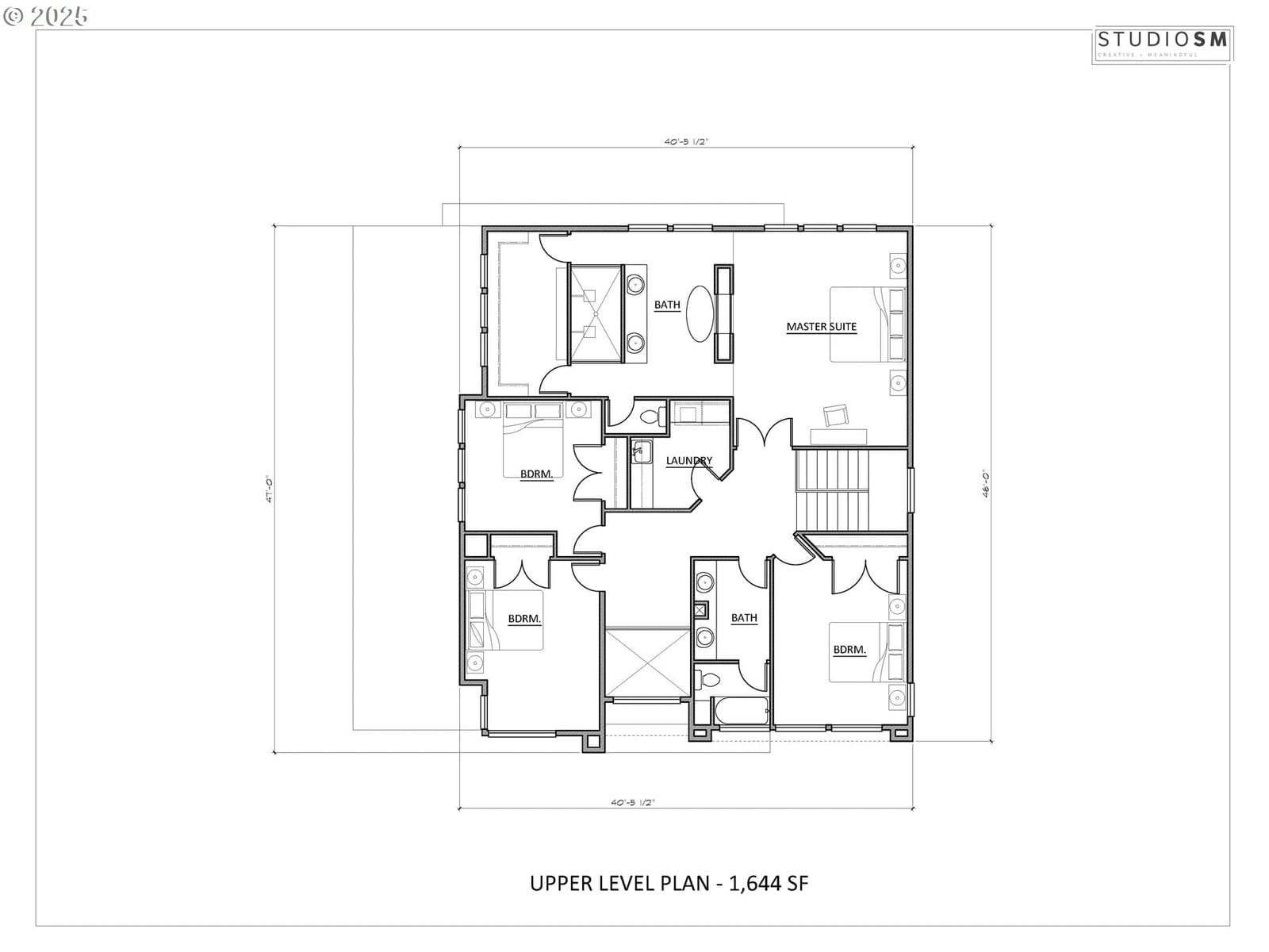
Welcome to Sunview Estates, an exclusive gated community perched atop Prune Hill in coveted Camas, WA. This luxury 15-lot development offers stunning territorial views—featuring the Columbia River, Downtown Portland, and the picturesque valley below. Choose your ideal homesite and partner with renowned builder Modern NW to bring your dream home to life. The proposed floor plan showcases the signature open, light-filled modern aesthetic that Modern NW is known for. Buyers will have the unique opportunity to select their lot and collaborate with the builder to create a custom residence that perfectly suits their vision and lifestyle. This proposed home features 2 options for the main level. You can choose from a 3-car tandem garage or a 2-car garage that then will add an additional 330SF to the main level that can be configured to your choosing! Located just minutes from scenic parks, top-rated Camas schools, and the vibrant downtown district, Sunview Estates combines privacy, convenience, and upscale living. If you're seeking exceptional craftsmanship, thoughtful design, and contemporary luxury in one of Camas' most desirable neighborhoods, Sunview Estates is not to be missed! The HOA has not yet been established.
Extras & features
Cooktop, Dishwasher, Disposal, Microwave, Plumbed For Ice Maker
Legal description
Sunview Estates Lot 14
Walk Score data provided by Walk Score®