/
$370,000
98days on marketSold$360,000 · February 2, 2026
$370,000
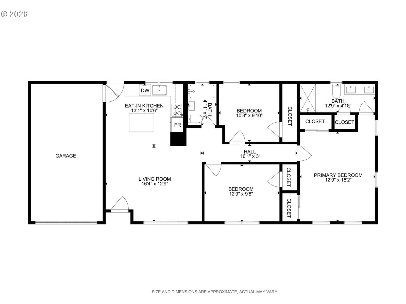
Welcome to this beautifully refreshed and move-in ready home, where comfort, functionality, and style come together seamlessly. Enjoy all-new flooring, fresh paint, updated lighting, a fully renovated kitchen complete with 3cm quartz countertops, an island, brand-new stainless steel appliances and more. The open-concept living area is filled with natural light thanks to large windows that brighten every corner of the home. The spacious primary suite offers two closets and a stunning en-suite bathroom with a walk-in shower and a double vanity—ideal for relaxing after a long day. Additional bedrooms are generously sized, perfect for family, guests, or a home office. Step outside to a large, versatile backyard—a blank slate for your dream outdoor space. Whether you're envisioning a fire pit, garden, patio, or play area, the possibilities are endless. Whether you're looking to purchase your first home, or add a solid investment to your portfolio, this home is an excellent opportunity in a highly desirable coastal community. Located just minutes from local restaurants, grocery stores, the airport, parks, and more, and only a short drive to the scenic Coos Bay waterfront and beaches—this location has it all. Don’t miss your opportunity to own this updated gem in the heart of North Bend. Reach out today for more details or to schedule your private tour!
Extras & features
Dishwasher, Disposal, Free-Standing Range, Microwave
Legal description
CENTRAL ADD / 14700 /
Walk Score data provided by Walk Score®