/
$503,400
419days on marketSold$503,400 · February 6, 2026
$503,400
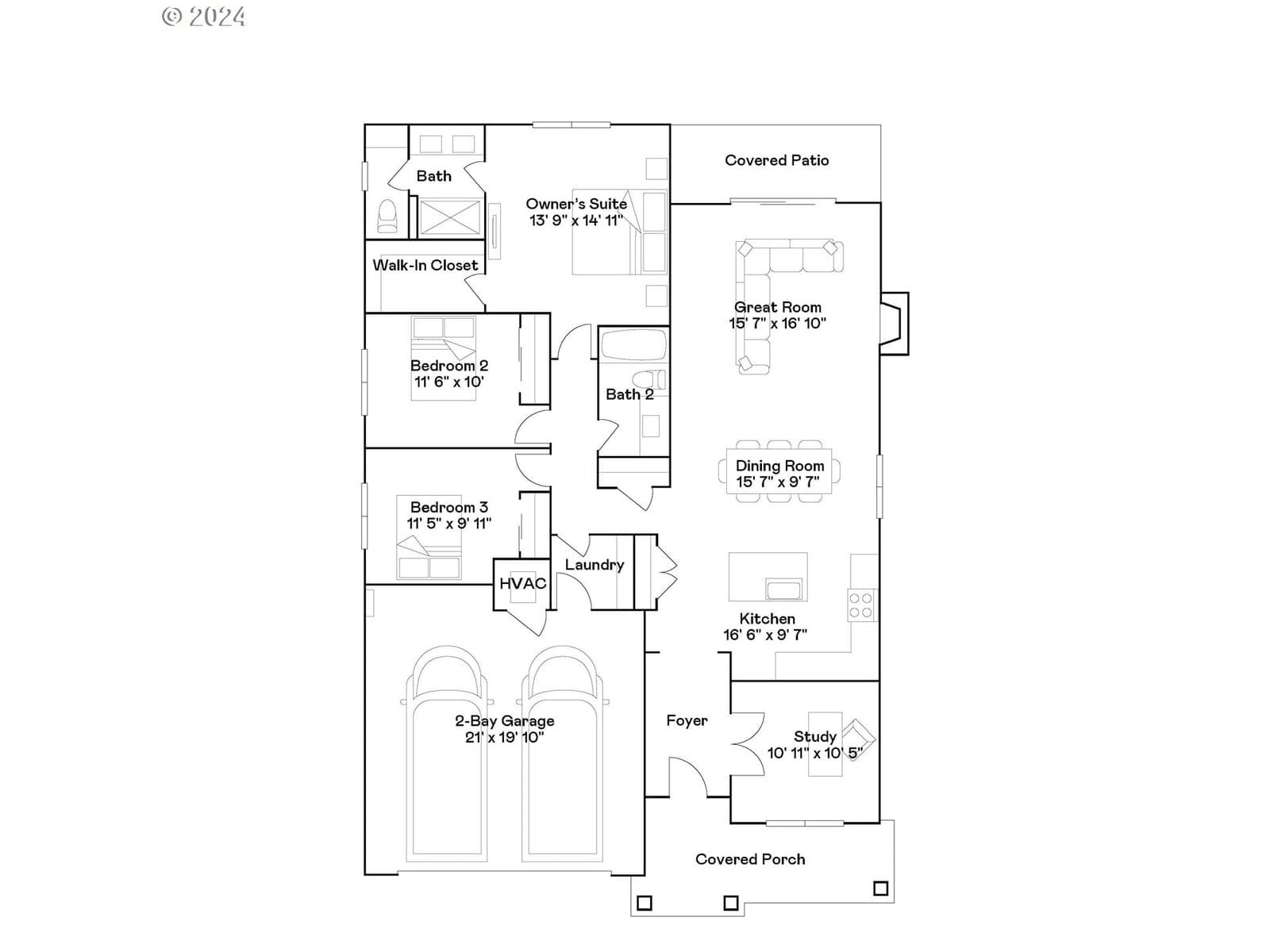
Take a self guided tour of this new construction home in Parkview Terrace, close to McMenamins Grand Lodge and adjacent to Thatcher City Park with walking trails and a dog park, just 35 minutes from Portland. The Trenton plan offers single-level living with an open kitchen, dining area, and great room with a fireplace, along with a private primary suite and two secondary bedrooms. A nearby study provides added flexibility. Interior highlights include quartz countertops and shaker-style cabinets. This home also includes central air conditioning, a refrigerator, washer and dryer, and blinds—all at no extra cost! Located on homesite 63, this home is move in ready. Rendering is artist conception only. Photos are of a similar home, features and finishes will vary.
Extras & features
Gas Water Heater, Dishwasher, Disposal, Free-Standing Gas Range, Microwave
Legal description
819 Misty Lane Lot 63 Forest Grove, OR
Building amenities
Walk Score data provided by Walk Score®