/
$549,500
68days on marketSold$549,500 · February 26, 2026
$549,500
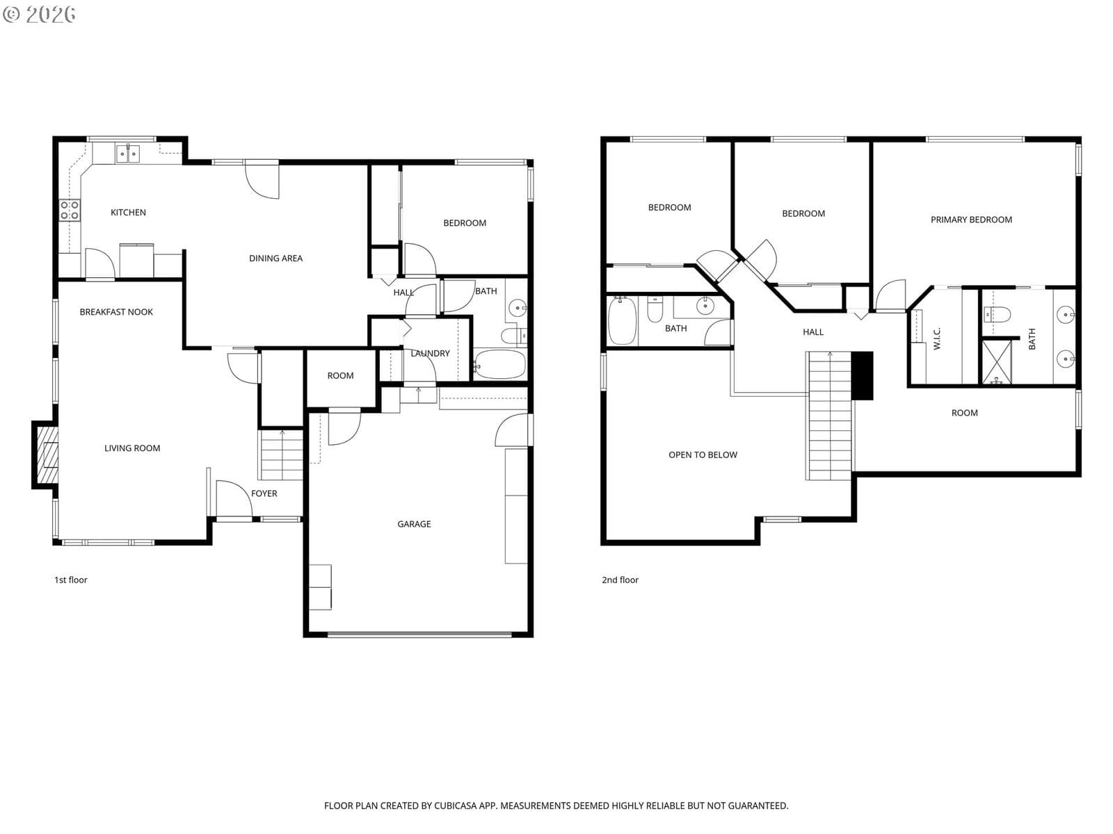
Great location and well-maintained throughout, this home welcomes you with a charming front porch. The floor plan offers flexible use of space, featuring a combined living and dining area with vaulted ceiling and lots of natural light. The kitchen opens to the family room, creating a great-room feel, with the option for the family room to serve as a larger dining space if desired. A full bedroom and adjoining bathroom are located on the main level. Upstairs includes a bonus area, a spacious primary suite with full bath and walk-in closet, and two additional well-sized bedrooms.The backyard is easy to maintain and includes a covered deck, standing raised garden beds and a tool shed. There is a large RV parking area. The roof was replaced in 2024, and the exterior was painted in 2025, water heater replaced in 2025.
Extras & features
Gas Water Heater, Dishwasher, Disposal, Free-Standing Range, Microwave, Plumbed For Ice Maker
Legal description
17-04-03-13-05200
Walk Score data provided by Walk Score®