/
$1,100,000
5days on market$1,100,000
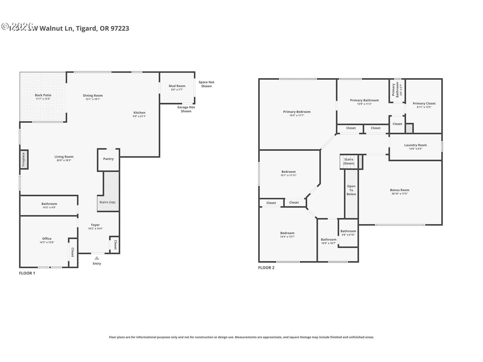
Tucked into quiet desirable neighborhood, with only three other homes on a dead end street, this beautifully constructed home blends comfort, functionality, and elevated design. Featuring a thoughtfully designed layout, the home offers spacious living areas, generous natural light, and seamless indoor-outdoor flow. Four bedrooms, including a main-level bedroom or office and full bathroom with walk-in shower. Large bonus room and elegant primary suite featuring a soaking tub, walk-in shower and heated tile floors. The open-concept layout seamlessly connects the kitchen, living, and dining areas, flowing effortlessly to a covered patio with built-in speakers and flat, low-maintenance turf yard—perfect for indoor-outdoor living. The yard backs to trees and feels very private. The chef’s kitchen is beautifully appointed with a large quartz island, professional-grade appliances, designer tile backsplash, an expansive pantry, and a large mud room with generous storage. Refined finishes elevate the home throughout, including a floor-to-ceiling linear fireplace, thoughtfully designed built-in storage systems, and built-in speaker sound system. Pre-plumbed for central vac, tankless water heater, 96% efficiency furnace and AC. Meticulously maintained and move in ready! Seller is licensed real estate broker in Oregon.
Extras & features
Gas Water Heater, Convection Oven, Dishwasher, Disposal, Double Oven, Free-Standing Gas Range, Microwave, Plumbed For Ice Maker, Range Hood
Legal description
FERN RIDGE, LOT 4, ACRES 0.13
Building amenities
$1,200,000
1472 N Columbia Ridge WayWashougal, WA 98671
Status: EXP
4 beds · 3 baths · 3,713 SQFT
Walk Score data provided by Walk Score®