/
$414,900
173days on marketSold$414,900 · January 20, 2026
$414,900
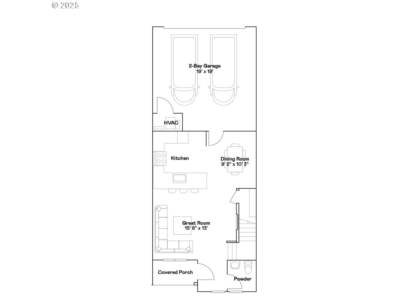
This move-in ready townhome at Butternut Creek by Lennar is located in charming Hillsboro. The new-construction Pioneer plan offers a well-designed layout with the kitchen, dining area, and great room with a fireplace all connected in an open-concept design. Upstairs, a central loft provides flexible space between three bedrooms, including a spacious primary suite with an en-suite bathroom and walk-in closet. Interior highlights include quartz countertops, shaker-style cabinets, LVP (luxury vinyl plank) flooring in the kitchen and entry, LVT (luxury vinyl tile) flooring in the bathrooms, two-tone interior paint, and landscaping. This home also includes central air conditioning, a refrigerator, washer and dryer, and blinds—all at no extra cost! Butternut Creek is conveniently located just minutes from the Intel campus, Nike, and Reed's Crossing Town Center loaded with shopping and dining options. This brand new community is packed with amenities including a community park with picnic areas, multi-use trails, a splash park, sports court, bike track, open space, dog parks and more. Located on homesite 445, this home is move-in ready. Rendering is artist conception only. Photos are of a similar home, features and finishes will vary. *Below-market rate incentives available when financing with preferred lender.* [Home Energy Score = 10. HES Report at https://rpt.greenbuildingregistry.com/hes/OR10237079]
Extras & features
Gas Water Heater, Washer, Dryer, Dishwasher, Disposal, Free-Standing Gas Range, Microwave
Legal description
Butternut Creek, lot 445
Building amenities
Walk Score data provided by Walk Score®