/
$474,900
94days on marketSold$455,000 · January 18, 2026
$474,900
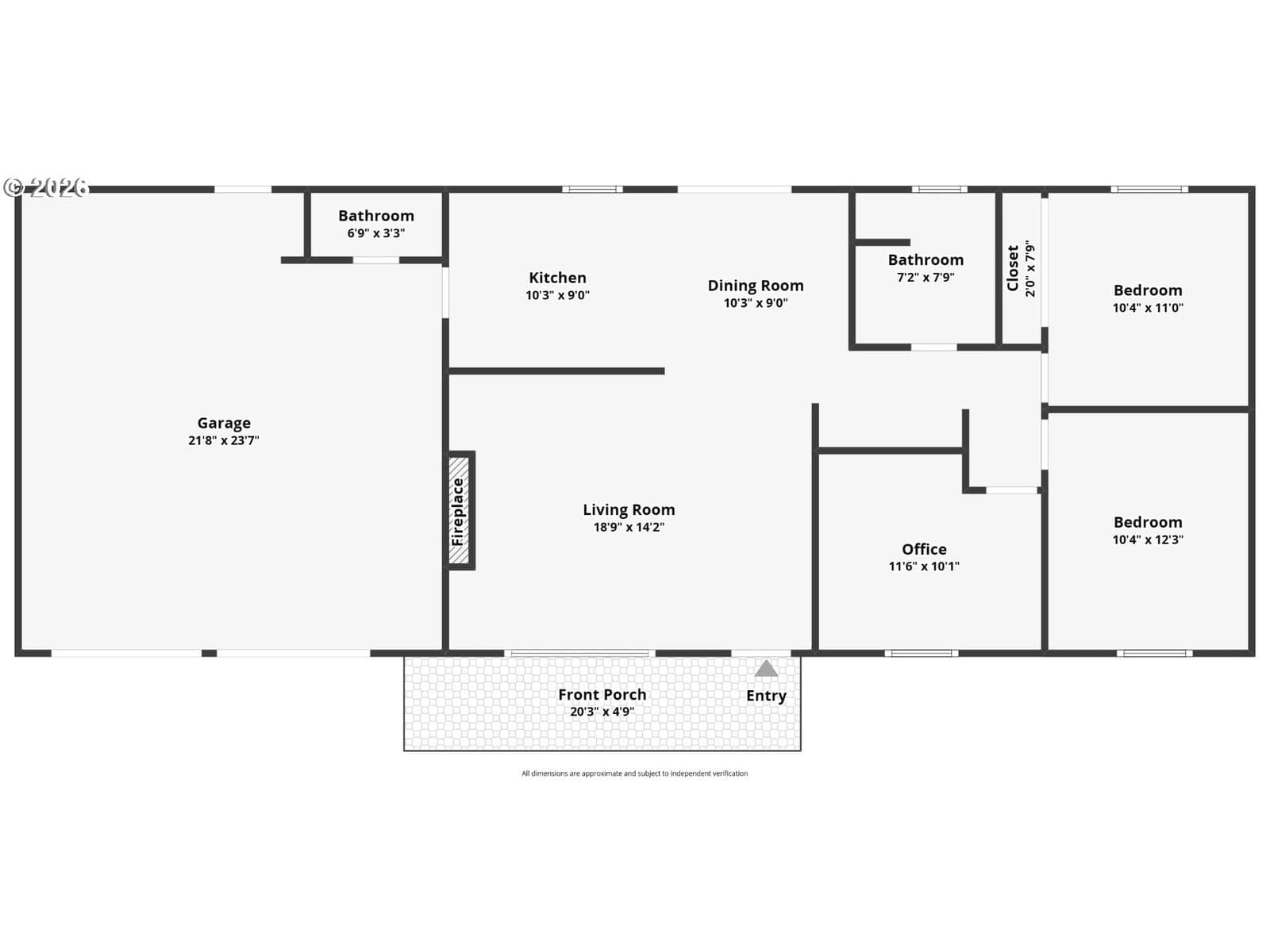
Step into timeless style with this 1966 mid-century modern gem in Vancouver, WA. This thoughtfully designed 3-bedroom, 1.1-bath home blends classic details with everyday functionality, featuring clean lines, natural light, and refinished original hardwoods throughout living spaces and bedrooms. The interior, completely refreshed in 2023 with new kitchen cabinets, fixture's, appliances & modern quartz countertops; an electric fireplace; completely painted interior, new interior & exterior light fixtures; new modern vanities & fixtures in both baths. The oversized garage with an epoxy-coated floor offers versatility, making it ideal for parking, a workshop, home gym, or a potential hangout space. Sitting on an oversized corner .26-acre lot, the property offers exceptional outdoor space—perfect for gardening, entertaining, or future expansion. The fully fenced backyard includes side double gates making access to the back easy for storage and space to store all the toys. A shed in the back yard provides additional room for tools as well. ADU Potential-buyer to do due diligence. A convenient location in an established Vancouver neighborhood, close to the hospital, parks, restaurants, stores and the freeway!
Extras & features
Gas Water Heater, Washer, Dryer, Dishwasher, Disposal, Free-Standing Refrigerator, Microwave
Legal description
PARKWOOD LOT 6 FOR ASSESSOR USE ONLY PARKWOOD LOT 6
Walk Score data provided by Walk Score®