/
$630,000
61days on marketSold$639,650 · February 19, 2026
$630,000
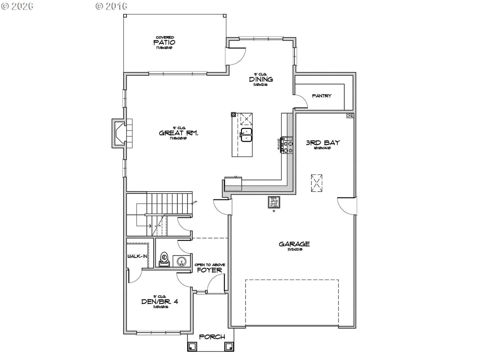
This stunning home, formerly the model home for the community features spacious and inviting living areas. Nestled on a lot that backs to peaceful greenspace, enjoy your private, fully fenced backyard perfect for outdoor living and entertaining. Step inside to discover a spacious layout featuring hardwoods through the main level living areas. The kitchen is a chef’s dream with quartz counters, tile backsplash, maple shaker cabinetry and stainless-steel appliances including a Whirlpool gas cooktop, wall oven, built-in microwave and Zephyr hood vent. The massive walk-in pantry provides exceptional storage and the open plan flows seamlessly into the living room. Additional highlights include a main floor den ideal for a home office or study, a 10 x 17 covered patio perfect for outdoor gatherings, 2 car garage + workshop or hobby space, an upstairs bonus/media room 21 x 12 perfect for movie nights or a playroom. The master suite features a custom accent wall, large windows, dual sinks, soaking tub, walk-in tile shower, tile flooring and oversized walk-in closet. The laundry room features tile counters, sink, cabinets and included washer/dryer. Modern conveniences include air conditioning, smart home features (Ring doorbell, Nest thermostat, smart front door lock), tankless water heater, and all blinds stay. Backyard is fully fenced and features a retaining wall and French drain system. HOA dues of $69/month cover front yard landscaping. Located in a quiet neighborhood, just minutes from downtown Forest Grove, this home combines privacy, comfort and convenience. Call today for your private showing!
Extras & features
Oven, Gas Water Heater, Washer, Dryer, Cooktop, Dishwasher, Disposal, Microwave
Legal description
SILVERSTONE, LOT 36, ACRES 0.10
Building amenities
Walk Score data provided by Walk Score®