/
$550,000
97days on marketSold$525,000 · January 23, 2026
$550,000
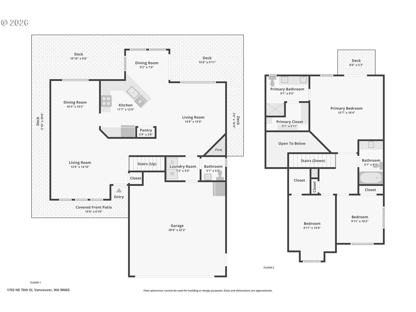
Must-See Home beautifully updated w/ a spacious open floor plan. The the kitchen shines with freshly painted cabinets, granite countertops, new tile backsplash, New SS Appl that all opens seamlessly to the GR & dining nook, w/ a door leading to a new wrap-around deck—perfect for relaxing or entertaining while taking in the views. Upstairs, the large prim ste features a WI closet w/ organizer, updated prim bath w/ double vanity, & a private slider to the deck. 2 additional bdrms & a bath complete the upper level. Recent updates include flooring, interior paint & exterior trim paint, interior doors, railing, trim, & Stone FP surround. Enjoy the covered front porch, 2-car garage, & a peaceful setting that truly feels like home.
Extras & features
Dishwasher, Disposal, Free-Standing Range, Free-Standing Refrigerator, Microwave
Legal description
CASTLEWOOD ESTATES LOT 16 SUB 94 FOR ASSESSOR USE ONLY CASTLEWOOD
Walk Score data provided by Walk Score®