/
$349,900
50days on marketSold$349,900 · February 28, 2026
$349,900
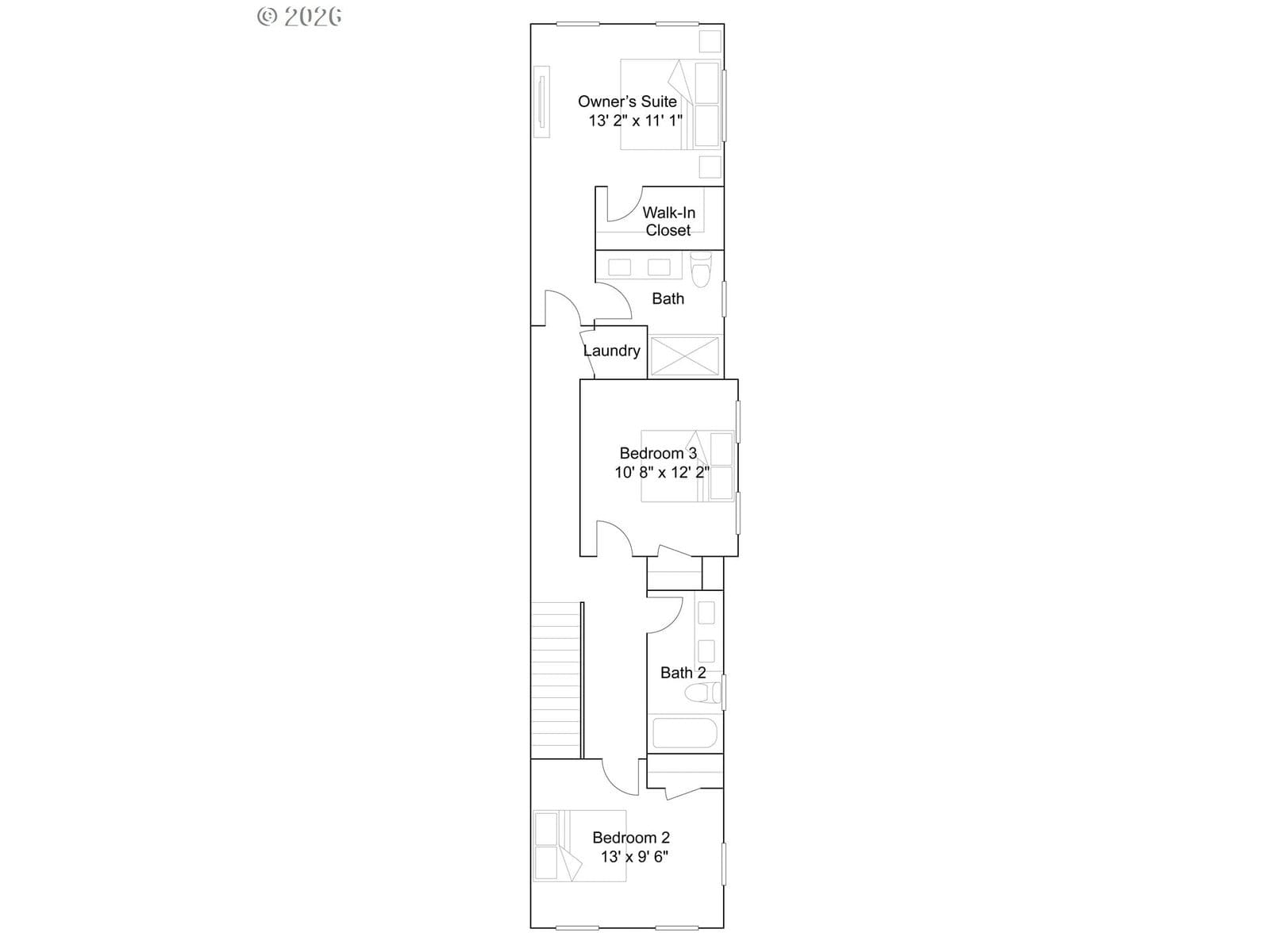
This new construction home by Lennar is located in Reed's Crossing, a new vibrant community only minutes from major employers with more than 36 acres of open spaces connected by paths, a Town Center featuring shopping and dining, and access to highly rated schools. The 3 bedroom, 2.5 bathroom Dallas plan offers a spacious two-story layout with an open-concept kitchen, dining area, and living room on the first floor, along with a covered patio ideal for outdoor relaxation. Upstairs are three bedrooms, including the well-appointed primary suite, which features a walk-in closet and an en-suite private bath with a double vanity. Interior highlights include quartz countertops, Shaker-style cabinets, LVP flooring in the kitchen and entry, LVT in the bathrooms, and two-tone interior paint. This home also includes central air conditioning, a refrigerator, washer and dryer, and blinds—all at no extra cost! Rendering is artist conception only. Photos are of a similar home, features and finishes will vary. Move-in ready. Homesite 1626. Flex credit/closing cost incentive available when financing with preferred lender! Use towards rate buydown and closing costs. [Home Energy Score = 10. HES Report at https://rpt.greenbuildingregistry.com/hes/OR10244075]
Extras & features
Gas Water Heater, Washer, Dryer, Dishwasher, Disposal, Free-Standing Gas Range, Free-Standing Refrigerator, Microwave
Legal description
REEDS CROSSING NO.15, LOT 1626, ACRES 0.04
Building amenities
Walk Score data provided by Walk Score®