/
$532,900
229days on marketSold$532,900 · January 25, 2026
$532,900
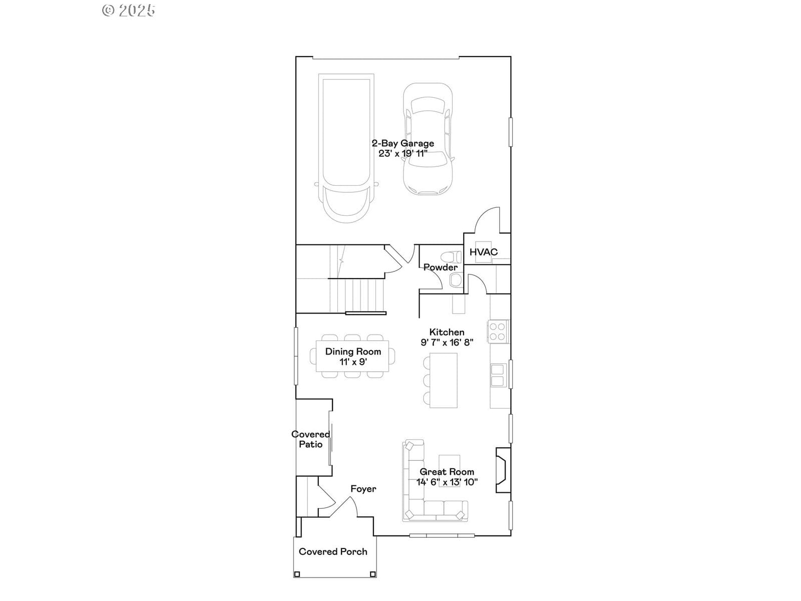
This move in ready, new construction Palmer plan is set within the desirable Reeds Crossing community, a vibrant neighborhood with more than 36 acres of open spaces, walking and biking paths, and a Town Center featuring shopping and dining. The community also provides access to highly rated schools and is just minutes from major employers, making it an ideal balance of convenience and livability. The Palmer plan showcases an inviting open main level where the kitchen blends effortlessly with the dining area and great room centered by a cozy fireplace, creating a welcoming hub for gatherings. Upstairs, the three-bedroom design is anchored by a generous primary suite complete with a spa-inspired bathroom and walk-in closet, while additional bedrooms provide comfort and versatility. Thoughtful finishes include quartz countertops, stainless steel appliances, and durable LVP flooring across the main living areas. This home also features the Everything’s Included® package, bringing added value with central air conditioning, refrigerator, washer and dryer, and blinds all included at no extra cost. Located on home site 1560. Photos are of similar or model home and features and finishes will vary. Below-market rate incentives available when financing with preferred lender!
Extras & features
Gas Water Heater, Washer, Dryer, Dishwasher, Disposal, Free-Standing Gas Range, Free-Standing Refrigerator, Microwave, Plumbed For Ice Maker
Legal description
Reeds crossing, lot 1560
Building amenities
Walk Score data provided by Walk Score®