/
$760,000
75days on market$760,000
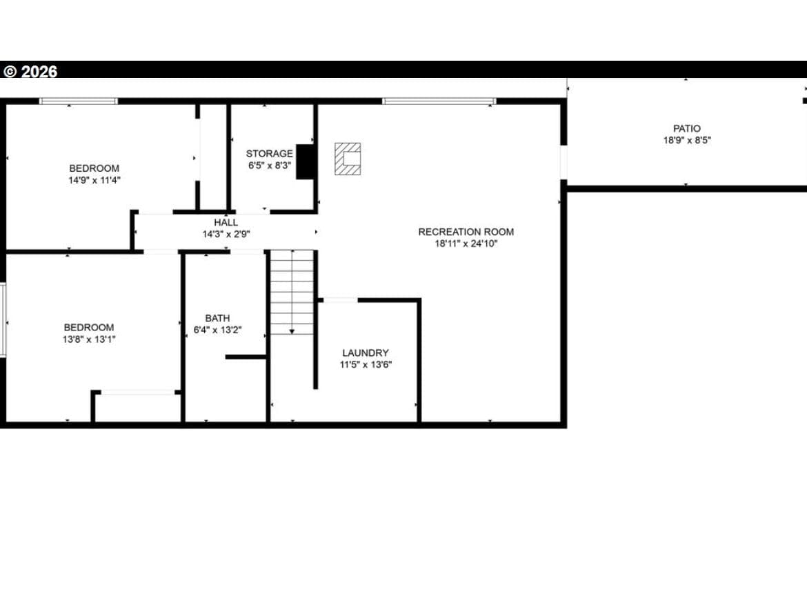
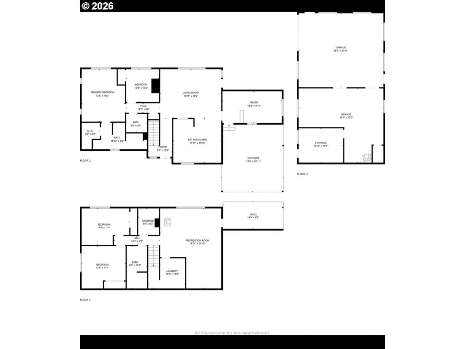
Welcome to SE Dover Lane! Modern living with country charm that Central Oregon offers. Easy access to Madras, Prineville, Redmond. This ranch style home has a full daylight basement with its own private access. 4 bedroom, 2.5 bath home sits on 10.49 acres with 9.7 acres irrigated in second year orchard grass producing over 7 tons of hay. Primary suite on main level with updated bathroom and walk in closet, large living room with big windows and small covered deck to take in the views, guest room, updated guest half bath, remodeled kitchen with new appliances, a versatile mud room/office/sew room that opens up into the 2 car attached carport. Downstairs has two large bedrooms, remodeled bath, storage, laundry room and nice living space with large windows. Outdoors, enjoy mountain views, beautifully landscaped grounds, garden area, hay storage, small livestock stall, fenced and crossed fenced, arena area and a 28x48 shop with heat, water and 220V inside and out, 2 sinks, wood stove, electric garage door with room for possible additional one, piping for air compressor inside shop. Don't miss this opportunity. Owner is licensed Oregon Realtor. Possible partial seller financing, priced to sell and looking at all offers. Built in double ovens, microwave, dishwasher and Induction cook top, butcher block countertops, tile back splash, disposal, plumbed for ice in frig and deep Farm Style white sink. Free standing Fireplace, underground sprinklers, new pellet stove. All Hand Line pipe and Main line pipe on property is included. Pond is off of Dover lane and has it's own pump shed, power meter pump and pipe. Water pond is shared with immediate neighbor. Pond is on Dover Ln. away from property, power meter is in owner's name, pump is co-owned with immediate neighbor including maintenance. No unit states recorded easements to pond; just not from pond to property; main lines owned independently.
Extras & features
Oven, Dishwasher, Disposal, Double Oven, Free-Standing Refrigerator, Induction Cooktop, Microwave, Plumbed For Ice Maker
Legal description
1113240000508
Walk Score data provided by Walk Score®