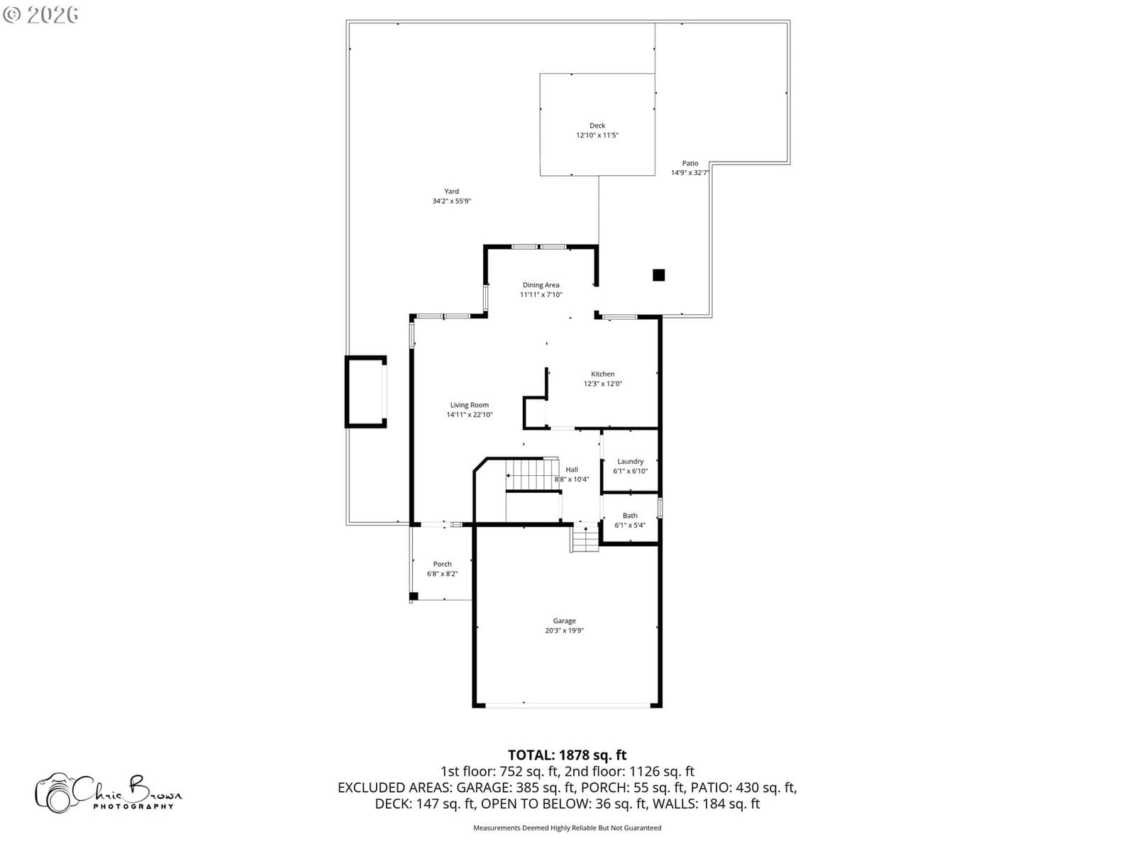
4647 SE 20TH TER, Gresham, OR, 97080 | Brantley Christianson Real Estate | Brantley Christianson Real Estate