/
$428,000
67days on marketSold$465,000 · February 12, 2026
$428,000
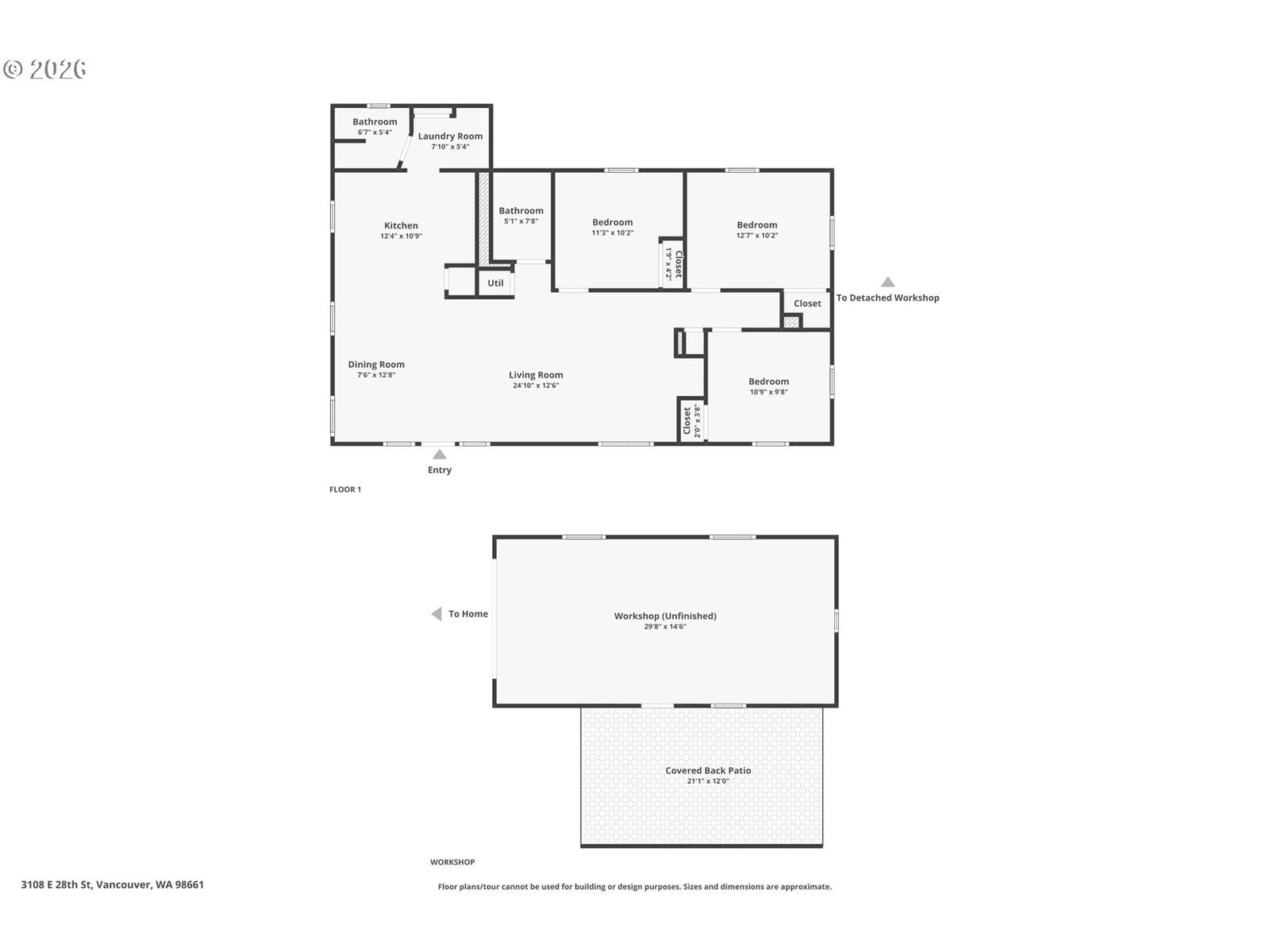
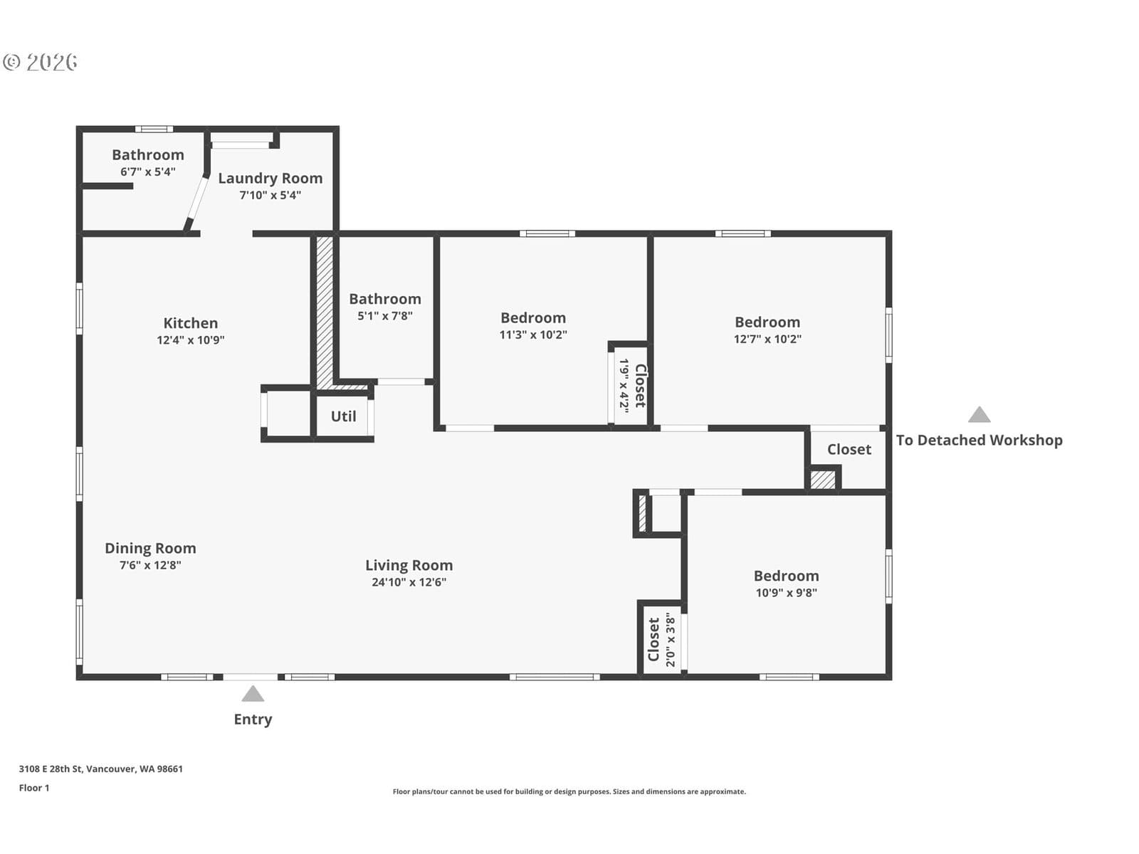
Super charming and lovingly cared-for 1940s home that blends timeless character with thoughtful updates. Bright and airy throughout, featuring a newer roof and solar panels for peace of mind and efficiency. The spacious yard is a gardener’s dream with multiple fruit trees, including cherry and pear, plus plenty of room to grow. Enjoy outdoor living year-round under the covered patio. A standout feature is the 29x14 detached workshop, complete with a built-in pit for vehicle maintenance or projects and a bonus loft space above. Tucked into a quiet neighborhood while not being far from everything, this home is truly the best of both worlds.
Extras & features
Dishwasher, Free-Standing Range, Plumbed For Ice Maker
Legal description
FOURTH PLAIN VILLAGE LOT 7 BLK 4 FOR ASSESSOR USE ONLY FOURTH PLA
Walk Score data provided by Walk Score®