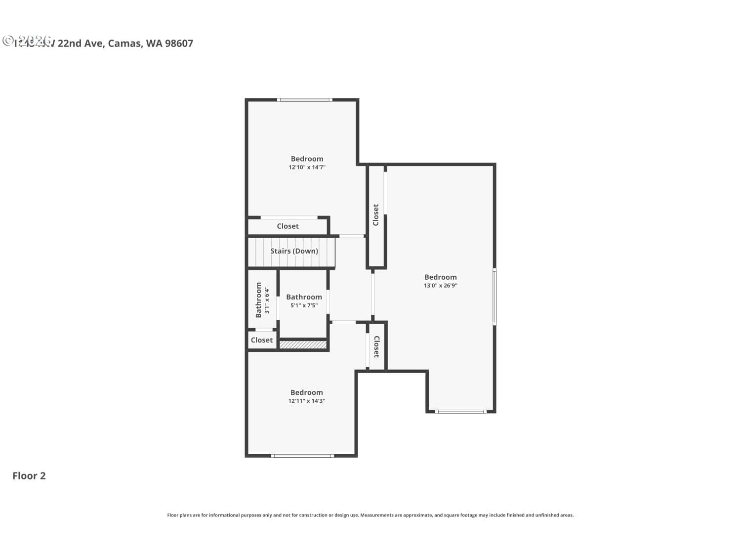
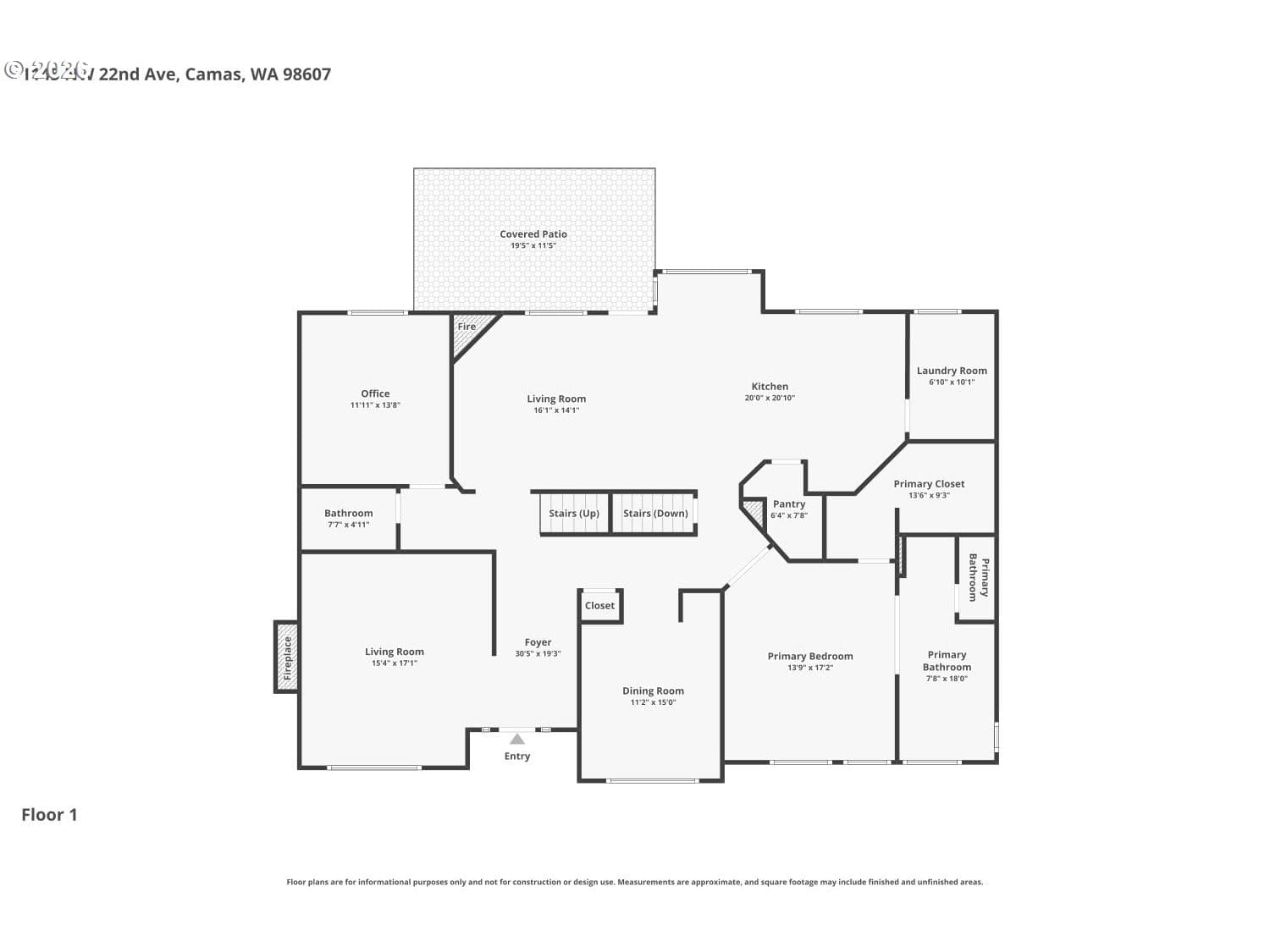
1145 NW 22ND AVE, Camas, WA, 98607 | Brantley Christianson Real Estate | Brantley Christianson Real Estate