/
$653,400
68days on marketSold$653,400 · February 13, 2026
$653,400
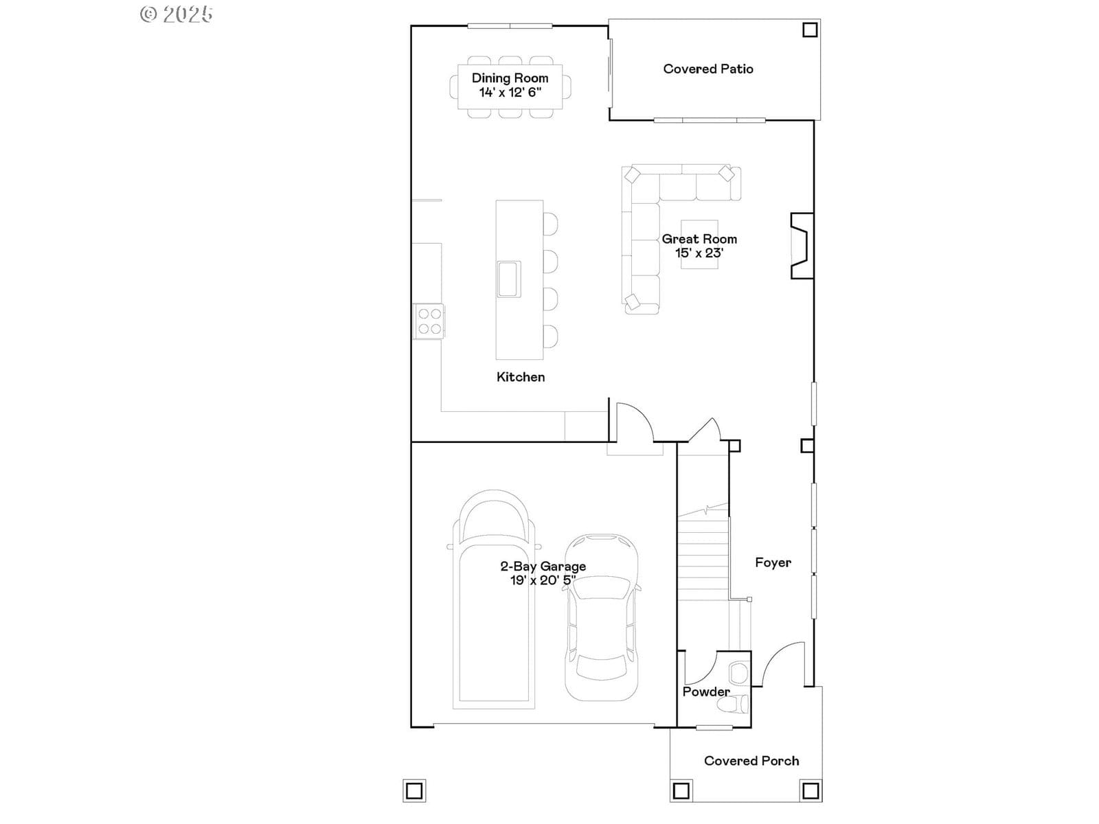
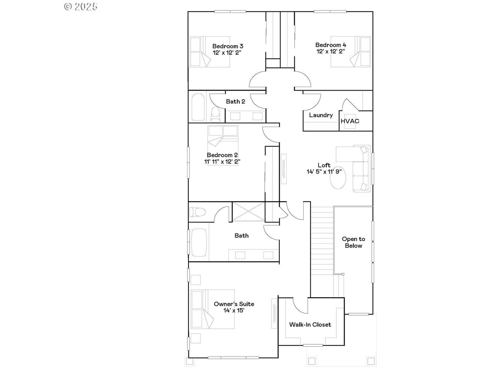
Discover this beautiful new construction home in the Autumn Sunrise community, ideally situated near I-5 with convenient access to shopping and dining. Residents in this community enjoy inviting neighborhood amenities including a playground, fire pit, pickleball and basketball court — designed for fun and easy get-togethers. The Magnolia plan features an open concept main floor with a great room, kitchen, and dining room that connect to a covered patio. Upstairs, a loft provides flexibility along with four bedrooms, including a primary suite with an ensuite bath and walk-in closet. Interior highlights include quartz countertops, shaker-style cabinets, carpet in all bedrooms, a fireplace with floating mantle, two-tone paint, and other luxury details. This home also includes front & back yard irrigation, fencing, and central air conditioning, plus a refrigerator, washer and dryer, and blinds — all included at no extra cost! Located on homesite 331, this home is expected to be complete in Spring 2026. Rendering is artist conception only. Photos are of a similar home, features and finishes will vary. *Below-market rate incentives available when financing with preferred lender.
Extras & features
Washer, Dryer, Dishwasher, Disposal, Microwave
Legal description
AUTUMN SUNRISE NO.4, LOT 331, ACRES 0.1
Building amenities
Walk Score data provided by Walk Score®