/
$498,000
80days on marketSold$500,000 · January 27, 2026
$498,000
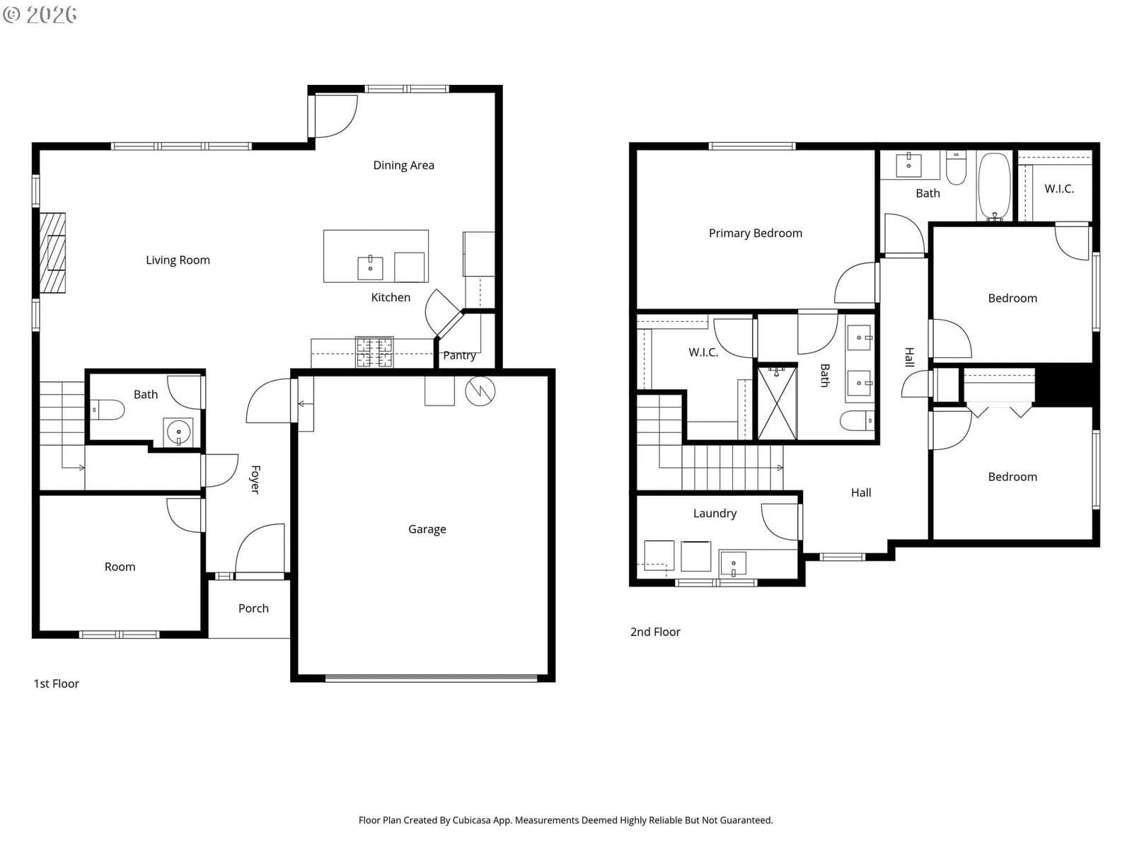
Beautiful home in a desirable neighborhood, 3 bds, Plus a bonus room on the main level. Open floor plan with AC, gas fireplace, Nest thermostat, kitchen has undercabinet lighting, walk-in pantry, kitchen & island has Quartz countertops. Includes Nest doorbell camera, SS fridge, gas stove, microwave, W/D. Primary bedroom has dual vanity sinks with quartz counter tops, toe kick lighting, walk-in shower, walk-in closet, separate laundry/utility room. Fully fenced back yard includes deck and UGS. Easy access to I-5. A must see!
Extras & features
Gas Water Heater, Dishwasher, Free-Standing Gas Range, Free-Standing Refrigerator, Microwave
Legal description
DAVIS HEIGHTS, LOT 7, ACRES 0.10
Walk Score data provided by Walk Score®