/
$160,000
49days on marketSold$160,000 · March 3, 2026
$160,000
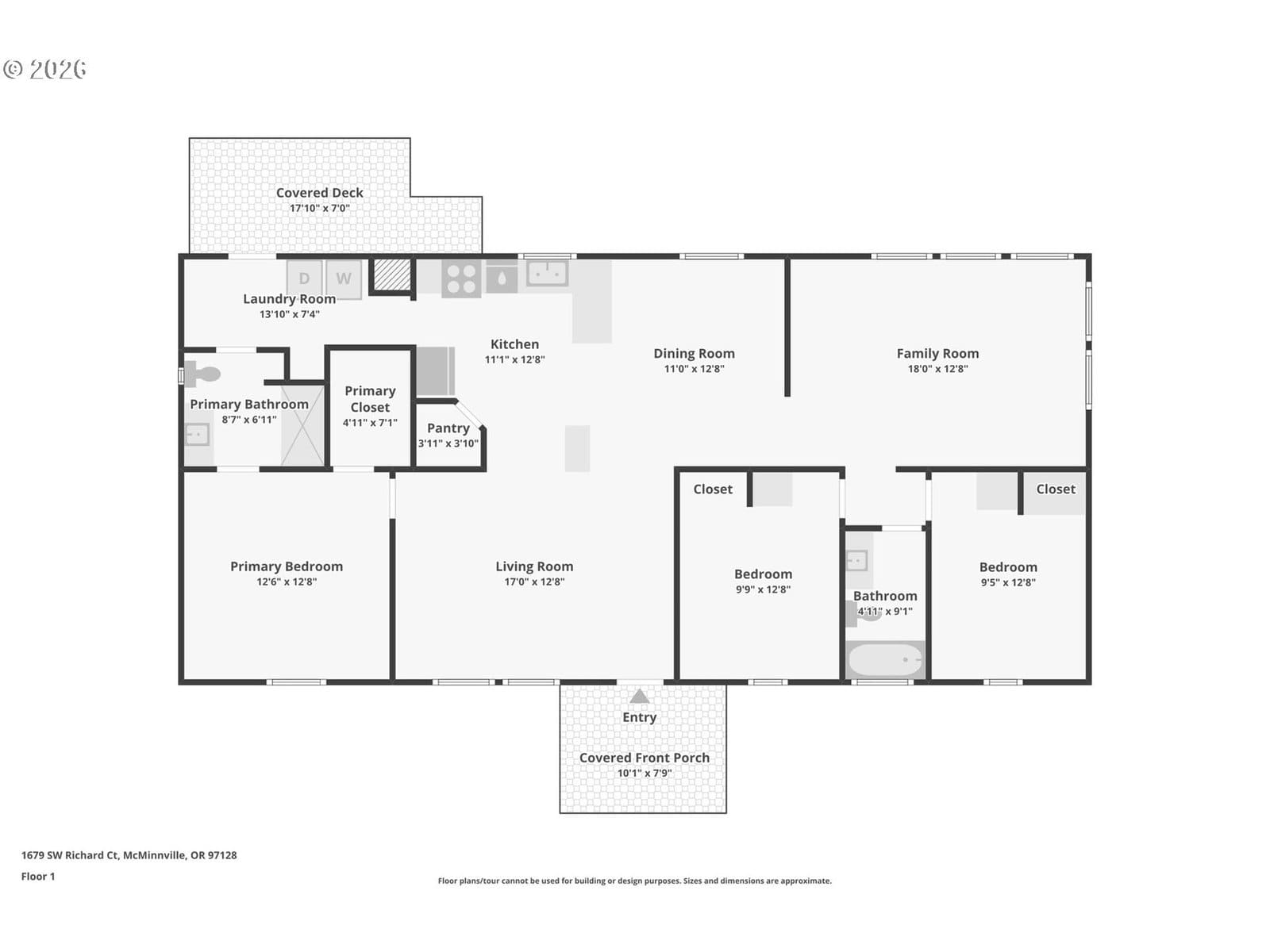
Well-maintained 3 bed, 2 bath home on a large corner lot in a quiet McMinnville cul-de-sac. Thoughtful floor plan with separate living and family rooms, vaulted ceilings, and abundant windows that fill the home with natural light. Recent updates include all new flooring in the laundry room, kitchen, living room, and family room, plus a new roof last year and a newer heat pump for efficient year-round comfort.The fully fenced backyard offers privacy and charm with established plants and trees, raised garden beds, and even a small chicken coop. All appliances are included, making this home truly move-in ready. Convenient access to a nearby park, schools, shopping, and local amenities — easy living in a great location.
Extras & features
Washer, Dryer, Disposal
Legal description
TOWNSHIP 4S RANGE 4W SECTION 20 QTR C QQTR C TAXLOT 00127 LOT 3 B
Walk Score data provided by Walk Score®